.Von Innen und Außen neu: Sanierung und Erweiterung Firma Rekers

21030.Sanierung der Verwaltung und Erweiterung des Sozialtraktes REKERS GmbH Maschinen- und Anlagenbau

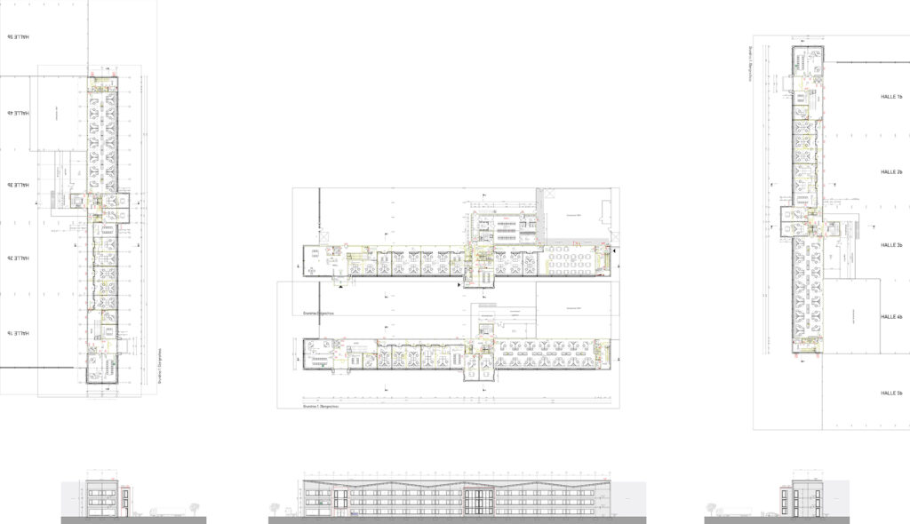
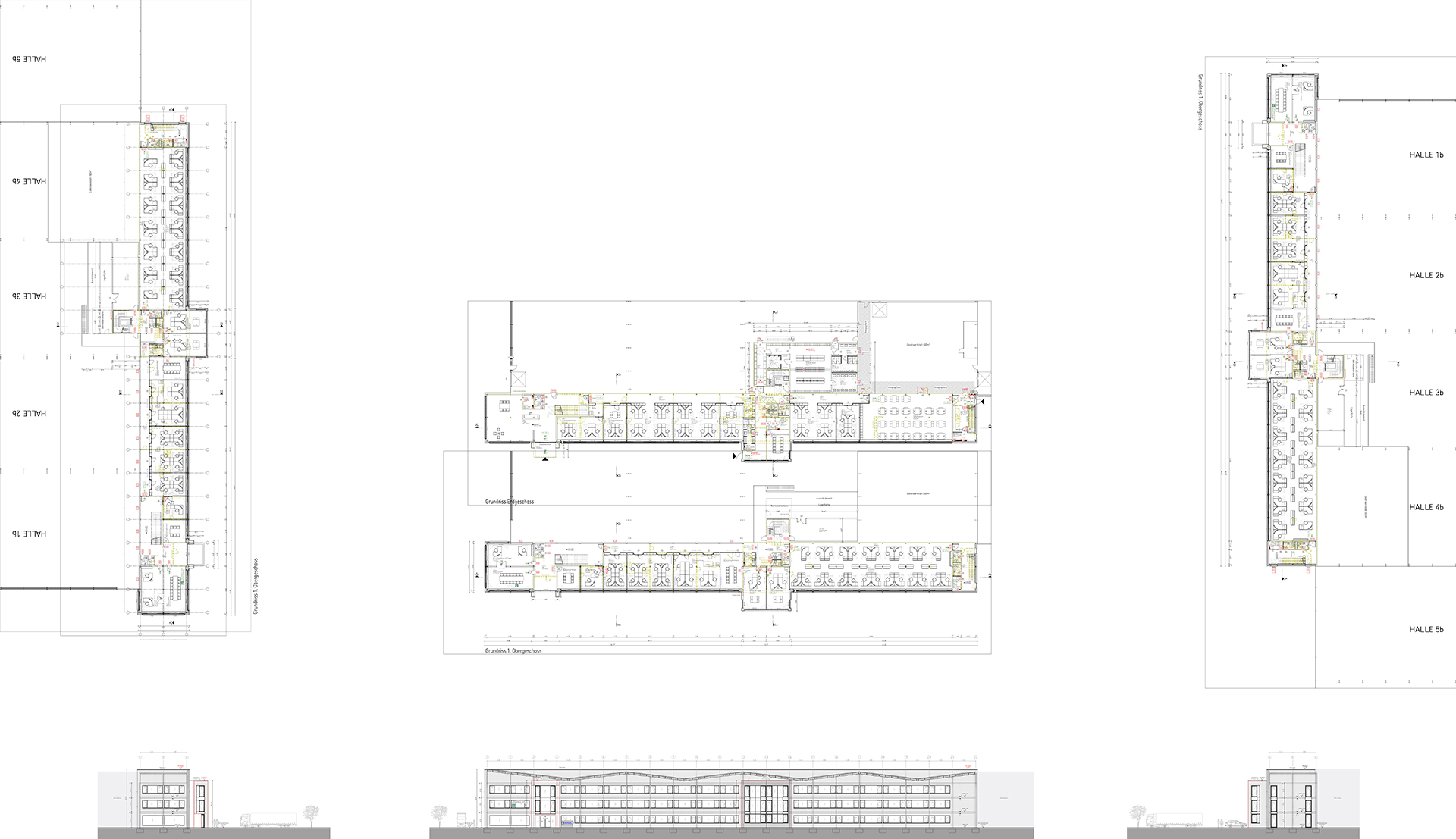
Am Standort der Rekers GmbH Maschinen- und Anlagenbau entsteht durch die Sanierung der Verwaltung und die Erweiterung des Sozialtrakts ein zeitgemäßes und funktional klar gegliedertes Gebäudeensemble. bauwerk verantwortet die Generalplanung und koordiniert das Projekt in enger Zusammenarbeit mit dem Bauherrn. Die Arbeiten erfolgen im laufenden Betrieb – eine präzise Planung und die temporäre Umorganisation der Arbeitsplätze sichern dabei einen reibungslosen Ablauf. Die intensive Auseinandersetzung mit dem Bestand prägt den Entwurf. Bestehende Strukturen werden weiterentwickelt und durch die Sanierung einer rund 200 Meter langen Fassade zusammengeführt. Der eigens von Rekers entwickelte Betonstein verleiht dem Gebäude eine unverwechselbare Identität und macht das technische Know-how des Unternehmens sichtbar. Trotz strenger wirtschaftlicher Vorgaben entsteht eine Architektur von hoher Qualität, die Funktionalität, Klarheit und Ausdrucksstärke vereint und den Standort zukunftsfähig stärkt.

Zeichnungen: bauwerk

Ort: Spelle
Entwurf: bauwerk
Jahr: 2025
Leistung: Generalplanung (LP 1-9)

.weitere projekte