.Gesundheit im Fokus: Neubau Notaufnahme und Bettenhaus UKM

24017.UKM IM Borghorst

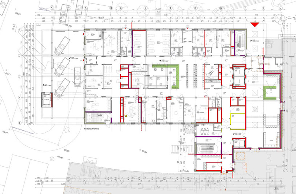
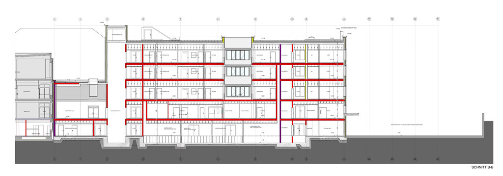
Am Standort Borghorst des Universitätsklinikums Münster entsteht ein Neubau für die Notaufnahme mit angeschlossenem Bettenhaus, der moderne Anforderungen an Akutversorgung und Patientenbetreuung vereint. Der Entwurf stammt von Ludes Architekten aus Recklinghausen und setzt auf eine klare, funktionale Architektur, die effiziente Abläufe, Orientierung und eine patientenfreundliche Atmosphäre miteinander verbindet.

bauwerk übernimmt das Baumanagement inklusiv aller Ausschreibungen, Vergaben und Bauleitung und stellt hiermit eine termingerechte, hochwertige Umsetzung sicher. Besondere Aufmerksamkeit gilt der Integration der Baumaßnahme in den Klinikbetrieb, sodass der laufende Klinikbetrieb während der Bauphase weitgehend unbeeinträchtigt bleibt.

Zeichnungen: Ludes Architekten, Recklinghausen

Ort: Borghorst
Entwurf: Ludes Architekten, Recklinghausen
Jahr: 2026
Leistung: Baumangement (LP 6-9)

.weitere projekte